Home Plans TYPE E-101
  • Home Plans TYPE E-101
  • Home Plans TYPE E-101

Home Plans TYPE E-101

SKU : Home_Plans_TYPE_E-101

Style

 contemporary

Number of floors

 01

Bedroom

 3

Bathroom

 3

Public toilet

 1

Living area

 1

Dining area

 1

Kitchen

 Wet Kitchen

Wash area / Store

 1

Terrace area

 1

Car porch

 1

Size

 30x60 feet

Built up area

 1800 sq.ft

DESIGN POLICY

Our plans are only for schematic proposal purposed. Some of these requirements, including architectural working drawings, structural engineering, soils reports and energy efficiency calculations may require significant additional investments.

The typical plan set does not include any plumbing, heating or air conditioning drawings due to the wide variety of local codes and climatic conditions. These details and specifications are easily obtained from your builder, contractor, and/or local suppliers.

All house plans from EDI REKABINA are designed to conform to the local codes.

Typical plan sheet examples ( Schematic Proposal Purposed )

PLANS

DESCRIPTION

 
BANGLO_SDESIGN001_Model_2_REVISED.jpg

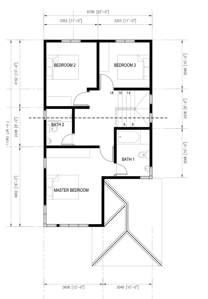
Floor Plan

Dimensioned plans indicating the layout of rooms, walls, doors, and windows. These are only schematic proposal purposed. Not include type of material related items.

 

 

BANGLO_SDESIGN001_Model_1_REVISED.jpg

Exterior Elevation

Elevations are a 2d representation of each side of the house. These plans are only schematic proposal purposed. Not included type of material for related items.

 

 

10.jpg

3d External Perspective view

Elevations are a 3d representation of each side of the house.

 

599
Qty